一體化方案制造商
在tft液晶屏行業中,每個從業者都需要學會看規格書和圖紙,包括采購tft液晶屏的人員也是需要懂得看tft液晶屏規格書參數以及圖紙,那如何看懂規格書和圖紙,需要了解哪些重要的點就是我們今天的主要話題,我們以海飛智顯8寸tft液晶屏,小編手把手教您看懂規格書以及圖紙。
1. 8寸tft液晶屏主要描述
在8寸tft液晶屏規格書中,一般所有的tft液晶屏廠商都是在前面幾頁就會顯示該產品的主要信息描述,由于所有的tft液晶屏規格書都屬于英文版本的,英文名稱是:General information,找到這個,一般我們主要看這個描述就基本了解了產品的大概信息。
而這個描述中會注明產品的尺寸、外形尺寸、AA區尺寸、厚度、分辨率、接口、工作溫度、儲藏溫度等。例如海飛智顯8寸tft液晶屏如下圖是主要信息描述:

2. 8寸tft液晶屏電流電壓
8寸tft液晶屏規格書中其次要注意的就是電流電壓,這些技術參數要提前了解,全面了解與自己的主板是否匹配,并且在合適的電流電壓下使用tft液晶屏產品,一般8寸tft液晶屏規格書中會描述出最小值和最大值。
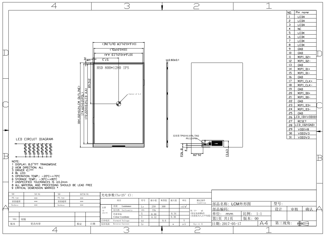
3. 8寸tft液晶屏圖紙
所有的tft液晶屏規格書都會附上產品圖紙,8寸tft液晶屏也不例外,拿我們這個8寸tft液晶屏圖紙為例,圖紙上所顯示的信息是最全面的,幾乎包含了很多方面,產品的尺寸,亮度,均勻度,PIN定義,視角等等信息都能在8寸tft液晶屏圖紙上獲取到。

一般我們采購或者想了解8寸tft液晶屏,可以和8寸tft液晶屏供應商詢問圖紙和規格書,可以進行詳細的了解后再確認是否需要樣品。如何看圖紙和規格書呢?只需要看這些參數值就行了,是不是很簡單呢?獲取8寸tft液晶屏規格書,請點擊聯系客服。
400-996-1208